Desire a movie-theater feel at home? Discover how to create a home theater with step-by-step guidance from the experts at Homegadget101.com

Here’s a comprehensive guide on DIY home theater project. We have included detailed instructions on constructing walls, ceilings, and risers to help you save money while elevating your movie-watching experience. With these insights, you can create the home theater room you’ve always wanted. Although it was one of more demanding projects, the effort was absolutely rewarding. Your family will enjoy the theater nearly every day!
Consider transforming your unfinished basement into your dream space. We will guide you through home theater design, soundproofing techniques, LED lighting ideas, installing acoustic panels, and drywalling. In this project, we utilized Green Glue acoustic compound and Green Glue acoustic caulk for optimal soundproofing. Additionally, we incorporated home automation with SmartThings, Google Home, and ActionTiles.
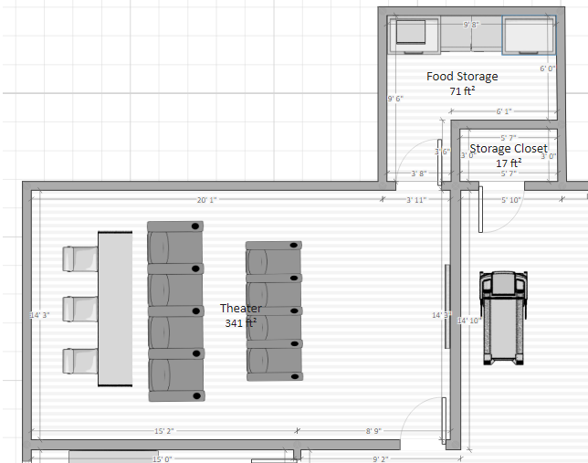
Step 1: Floor plan

Carefully plan out your design. Use the space you have efficiently, but make sure there is plenty of room to walk around. Figure out how many people you want to be able to seat and then figure out what seating you want. Be sure to leave enough room for big theater seats to fully recline. Theater seating dimensions can be found online.
Take into account how many speakers you want and determine the optimal location. Figure out what kind of lighting you want and the placement of the lighting. Lastly, figure out what size TV or projector screen you want and make sure the seating is not too far away, or too close.
Step 2: Wall Construction




There are many types of wall construction you can use for soundproofing. No matter which one you choose, your goal is to isolate the inside of the room from the outside. Our favorite options are the following:
-Double wall. This is simply two 2×4 construction walls next to each other but not touching. This is very effective but the wall is very thick so it takes up more room and makes your door jams wide.
-Staggered studs. This is a 2×6 top plate and bottom plate with staggered 2×4 studs. This is the construction I used.
In addition, you should do whatever you can to isolate the walls from the floor and ceiling. We made rubber isolating fasteners for the top plate and then just used double sill foam in between the bottom plate and the concrete floor.
Outlets often serve as significant sound leak points. In our construction, we ensured that outlet boxes on the inside and outside walls were never positioned within the same wall cavity. Additionally, we applied acoustic putty to the back of each outlet.
Step 3: Riser Design


If you have two rows of seating, a riser is a must. Carefully design the riser height so people reclined in the back row can still see the bottom of the screen, but also make sure there is plenty of head room for tall people. Also remember to consider how large your theater seats are when reclined.
The bar features a straightforward 2×4 construction and integrates seamlessly with the riser, which is built with treated 2x8s. We’ve ensured it is equipped with all the necessary wiring for future needs, including outlets for power seats and LED step lights.
To enhance rigidity and prevent it from resonating like a drum when the bass hits, I filled the entire riser with insulation and covered it with two layers of 3/4″ OSB.
Step 4: Door Design


To soundproof your doors, ensure they seal well when closed. Use solid core doors as a minimum. Some add sand inside or mass outside for extra soundproofing. You can also buy specially designed soundproof doors. If your door is heavy, adjust the door frame accordingly.
We used solid core doors with double perimeter seals and automatic door bottoms. We extended the door’s bottom to reduce gaps and attach the auto door bottom.
Step 5: Wiring & HVAC

Consider everything you think you might ever want, and wire for it. You will need to know speaker locations, HDMI locations and lighting locations.
We wired for Dolby Atmos, recessed lights, rear projector, LED riser lights, LED tray ceiling lights, power theater seats, front TV and LED wall lights.
Lastly, consider what you want to do with HVAC. If soundproofing is your only concern, then you may want to skip HVAC. Sound travels easily through ducts to the rest of the house.
Step 6: Insulation

Insulate everything. We did a lot of research on this. It turns out, when you are filling a wall cavity that will be covered on both sides with drywall, fiberglass insulation provides a good solution for the money. There are many other options you can consider as well, such as Rockwool.
Step 7: Ceiling Design


For the ceiling, we focused on soundproofing, height, and looks.
For soundproofing, we used resilient channel. We added extra under the tray ceiling area. This slightly reduces soundproofing but better supports the weight. Safety is key!
The tray ceiling was designed to fit 4″ recessed lights without cutting into the 1/2″ OSB sealing the room (see sketch). Ensure you have enough height for a tray ceiling, or skip it.
Step 8: Wall Covering/Sound Proofing


When soundproofing the wall and ceilings you need to consider mass, sealing and isolation.
For mass, I first lined the room with 1/2″ OSB. You can also just use two layers of drywall, but with the 1/2″ OSB you can also screw into the wall to hang something without worrying about hitting a stud. Be sure seams on the first layer and second layer are offset.
To seal the room, I used Green Glue acoustic caulk on every seam I could find. Pretend your theater is a boat and it has to hold water.
Then Green Glue acoustic compound is used in between the OSB and the drywall. This compound is designed to reduce the transmission of vibration and sound through the walls.
Step 9: Lobby



If you are going to have your own theater, you also need a place to put your equipment, store your movies, make popcorn and keep your favorite beverages cold.
This is an optional space and should be designed to meet your needs.
Step 10: Finishing Touches


Now that the room is done, add the finishing touches. Carpet is a good floor covering to improve sound quality. I used carpet in most of my room with some vinyl plank in the back where we mostly eat and drink.
If you go with a bar top, select a countertop that fits the design of you room. Hang your TV or projector. Install your AV equipment. You might also want to consider acoustic panels to reduce echo and improve sound quality. I built my panels and they also have LED lighting behind them.
Now, grab a drink, pop up some popcorn and enjoy the show!
